text
Haus St. Martin
Haus St. Martin, Iserlohn
Seniorenwohn- und Pflegezentrum
Das Haus St. Martin in Iserlohn-Hennen kombiniert die Ansprüche einer ganzheitlichen Betreuung und Pflege mit dem individuellen Wohnbedarf älterer Menschen. Wohnen und Leben in einem der 80 großzügigen, seniorengerechten
Einzelzimmer bedeutet Wohlbefinden und lässt individuelle Freiräume. Im Haus St. Martin wird eine aktivierende Pflege (in allen Pflegegraden) praktiziert, mit der verloren gegangene Fähigkeiten wieder hergestellt und vorhandene Stärken gefördert werden. Der Ortsteil Hennen liegt im Norden Iserlohns, im Hügelland südlich der Ruhr. Bus und Bahnhof sowie zahlreiche Einkaufsmöglichkeiten sind in unmittelbarer Nähe. Ebenso sind es nur ein paar Schritte zu Apotheken und Ärzten. Wohlfühlen ist kein Problem im Haus St. Martin dank der eigenen Gartenanlage mit geschütztem Duft- und Sinnesgarten, einer geräumigen Terrasse und der hauseigenen Cafeteria. Der schöne Pavillon, an einem Bachlauf gelegen, lädt zum Entspannen und Erholen ein.
Spezielle Angebote für demenzerkrankte Bewohner, Kneipp-Therapie, Aktivitäten für Körper und Geist wie z. B. Snoezelen, die hauseigene Küche, die frisch und gesund ein breitgefächertes Speisenangebot bietet ... die Möglichkeiten und Angebote sind so vielfältig, dass sich im Haus St. Martin jeder wohl und willkommen fühlt.
Frau Anje Gimmini-Schlenz
Einrichtungsleitung
02304 98290-0
02304 98290-11
Besonderes
- großzügige Gartenanlage
- eigene Küche und Hauswirtschaftsleistungen
- großzügig gestaltete Einzelzimmer mit Bad und Balkon/Terrasse
- Kreativräume, Cafeteria, Wellnessoase
- gute Anbindung in die Nachbarschaft: Einkaufsmöglichkeiten in der Nähe, Ärzte, Apotheken, Kirchengemeinden, Stadtverwaltung, Vereine etc.
Adresse & Anfahrt
Internationales Bildungs- und Sozialwerk
Haus St. Martin
Scherlingstraße 20
58640 Iserlohn
Unser Haus
Die Umgebung
Der Ortsteil Hennen liegt im äußersten Norden Iserlohns, im Hügelland südlich der Ruhr. Der Ortskern blickt auf eine lange Geschichte zurück. Heute leben in Hennen und denen zur Gemeinde zählenden Ortschaften etwa 10.000 Einwohner.
Iserlohn-Hennen liegt verkehrstechnisch günstig. Eine Bushaltestelle liegt etwa 150 Meter entfernt, von der aus das Stadtzentrum von Iserlohn und Schwerte erreicht werden kann. Zudem ist der Bahnhof für eine Zugverbindung nach Iserlohn, Schwerte, Dortmund oder Hagen vom Haus Sankt Martin ca. 500 Meter entfernt gelegen.
Das Haus befindet sich in einer zentralen Lage. In der unmittelbaren Nähe bestehen Einkaufsmöglichkeiten für den alltäglichen Bedarf. Auf dem Marktplatz findet jeden Donnerstag der Wochenmarkt statt. Die Sparkasse, ein Optiker, eine Apotheke und weitere Geschäfte bzw. Einkaufsmöglichkeiten sind ebenfalls nur ein paar Schritte entfernt. Mehrere Praxen praktischer Ärzte, Internisten und Zahnärzte liegen in direkter Umgebung.
Das Haus
Das Haus St. Martin wurde im August 2007 eröffnet. Insgesamt bieten 80 großzügige, rollstuhlgerechte Einzelzimmer, die individuellen Bedürfnissen angepasst werden können, die Gewähr für Komfort und Wohlbehagen. Die Wohngruppen sind auf drei Ebenen verteilt. Im Erdgeschoss befinden sich 24 Zimmer, in der ersten Etage 36 Zimmer und in der 2. Etage 20 Zimmer. Jede Wohngruppe verfügt über einen Aufenthaltsraum, ein spezielles Pflegebad, eine Teeküche und Mehrzweckräume.
Unser schöner Innenhof mit Bachlauf, Pavilion und vielen Pflanzen laden zum Verweilen und kleinen Rundgängen ein.
Helle Gemeinschaftsräume und gemütliche Ruhezonen in allen Wohnbereichen
Die Räumlichkeiten der Wohnbereiche sind überschaubar und bieten gute Orientierung, was dem besonderen Bewegungsbedürfnis der Bewohner mit Demenz in und außerhalb der Wohngruppe sehr entgegen kommt.
In den Gemeinschaftsräumen gibt es jeweils eine Bewohnerküche und auch die Möglichkeit sich zum Lesen, Basteln und "Klönen" zu treffen.
Wir bieten verschiede Räume für unterschiedliche Aktivitäten z. B. Gymnastikraum, verschiedene Kreativräume und Cafeteria an. Jeder Wohnbereich verfügt über helle und freundlich eingerichtete Ess- und Gemeinschaftsräume und gemütliche Sitzecken. Kreative Aktivitäten wie z. B. Basteln und Handarbeiten werden gemeinsam im gemütlichen Bastelraum durchgeführt. In hellen Gemeinschaftsräumen finden unterschiedliche tagesstrukturierende Angebote wie z. B. Gedächtnistraining, Malen, Backen, Kochen oder Spielrunden statt.
Jeder Wohnbereich ist mit einem schön gestalteten Pflegebad ausgestattet.
Die Zimmer
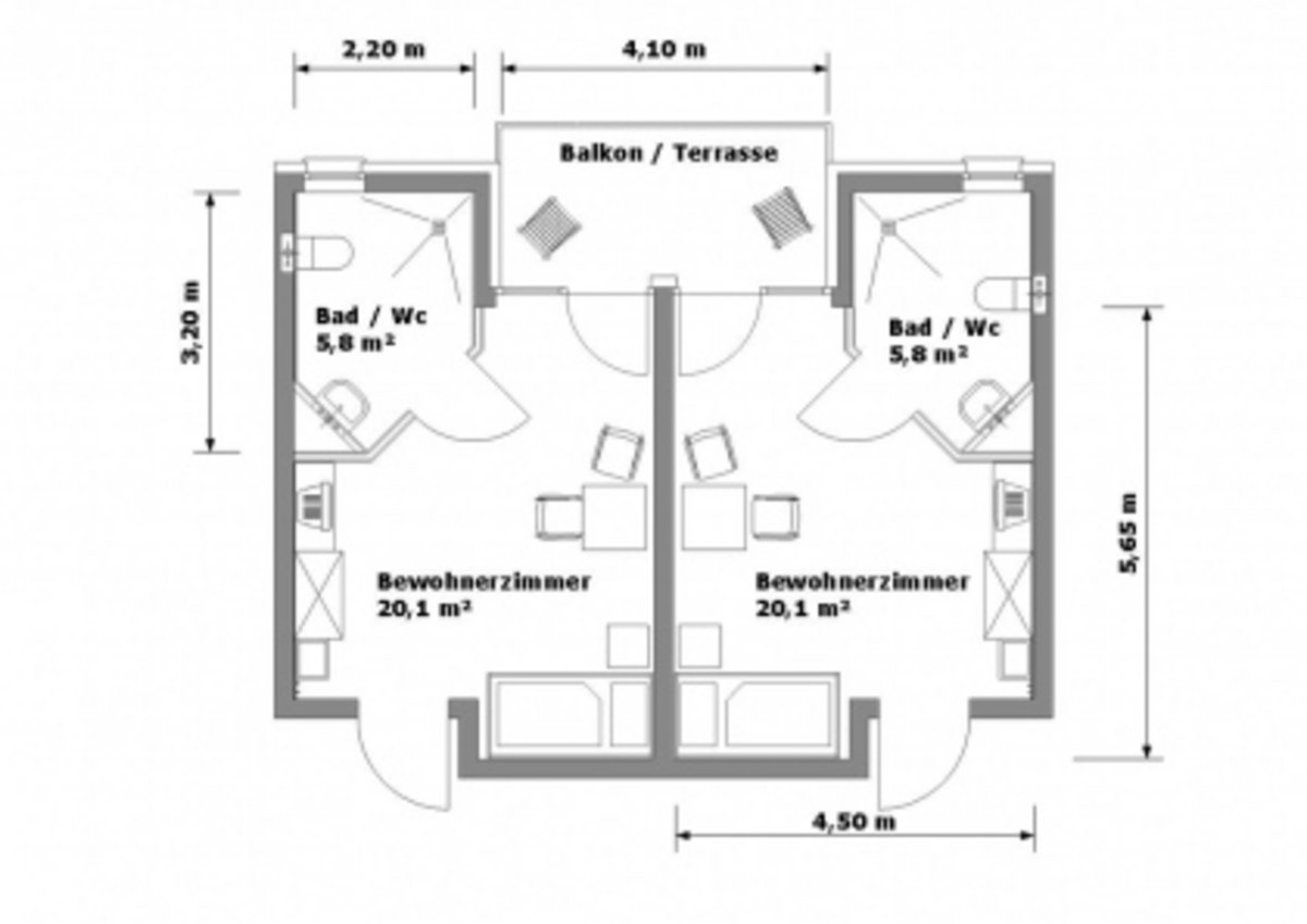
Die Einzelzimmer mit einer Größe von mindestens ca. 26 m² (inklusive Bad/Wc) sind deutlich größer, als es der Gesetzgeber fordert.
Wir stellen Ihnen ein eingerichtetes Zimmer mit elektronisch verstellbarem Pflegebett, Nachttisch, Hochlehnerstuhl, Besucherstuhl, Tisch, Kleiderschrank, Sideboard und Sitzhocker zur Verfügung.
Die großzügig angelegten Zimmer sind alle rollstuhlgerecht und garantieren Behaglichkeit und Komfort.
Das seniorengerechte Badezimmer ist mit natürlicher Belichtung und Belüftung ausgestattet.
Jedes Zimmer hat einen eigenen Balkon oder eine Terrasse.
Ausgestattet sind alle Zimmer mit einer Rufanlage, Fernsehanschluss, Telefonanschluss sowie einem Internetzugang auf Wunsch.
Auch können Sie Ihr Zimmer nach eigenen Wünschen mit lieb gewonnenen Kleinmöbel und Bildern einrichten, um so eine vertraute Atmosphäre zu schaffen.
Die Haltung von Haustieren ist nach Absprache mit der Heimleitung möglich.
Große Bewohnerzimmer (Einzelzimmer) bieten auch Platz für eigene liebgewonnene Möbel
Caféteria
Die hauseigene Cafeteria lädt ein zum gemütlichen Verweilen und Zusammensein und bietet zugleich den Bewohnern die Möglichkeit, Familienfeste mit ihren Angehörigen und Freunden zu feiern.
Die hauseigene Cafeteria ist Treffpunkt für Alt und Jung.
Von der Cafeteria ist man schnell in der eigenen Gartenanlage des Hauses.
Snoezelen: Wohlfühlen durch Stimulation
Das Haus St. Martin bietet Ihnen verschiedene Entspannungs- und Ruhemöglichkeiten. Ein spezielles Angebot ist ein Wohlfühlraum, der sogenannte Snoezelenraum. Der Snoezelenraum ist hell und freundlich gestaltet.
Im Enspannungsraum kann man auch alleine und in Ruhe ein paar ruhige Momente genießen.
Mit Hilfe von Lichteffekten, Geräuschen, Musik, Düften, fühl- und tastbaren Materialien, Farben und anderen anregenden Materialien wird dem Menschen im Snoezelenraum die Möglichkeit gegeben, in einer ruhigen Atmosphäre die eigene Sinneswahrnehmung zu erleben.
Gartenanlage
Um das Haus fügt sich eine eigene Gartenanlage an. Ein geschützter Duft- und Sinnesgarten, sowie ein schöner Pavillon an einem Bachlauf gelegen, laden zum Entspannen und Erholen ein.
Bewohner können hier auch ihrem gärtnerischen Hobby nachgehen, in dem sie Pflanzen und Blumen selbst säen und pflegen.
Ein weiteren Garten ist mit Hochbeeten ausgestattet und hier wachsen Kräuter und allerlei
schöne und bekannte Pflanzen.
Auf einer geräumigen Terasse finden Bewohner, besonders an sonnigen Tagen, Ruhe und Erholung. Der Garten lädt aber auch zu Aktivitäten, wie einem Boccia-Spiel, ein.
Für wen sind wir da?
Das Haus St. Martin verbindet alle Erfordernisse einer ganzheitlichen Betreuung und Pflege mit dem individuellen Wohnbedarf älterer und pflegebedürftiger Menschen.
Wohnen und Leben in unserer Einrichtung bedeutet für uns zugleich Selbstständigkeit fördern, Selbstbestimmung stärken und Teilhabe verwirklichen.
Wir bieten Ihnen:
- vollstationäre Dauerpflege
- Kurzzeitpflege
- Verhinderungspflege
- für alle Pflegegrade von 1 bis 5
Unser Anspruch ist eine ganzheitliche, individuelle Pflege und Betreuung durch qualifiziertes Fachpersonal.
Wir bieten eine aktivierende Pflege, mit der verloren gegangene Fähigkeiten wieder hergestellt und vorhandene Stärken gefördert werden sollen.
- Ganzheitliche individuelle Pflege und Betreuung durch qualifiziertes Fachpersonal
- Wohnangebot für demenz- und alzheimererkrankte Menschen
- Hilfen zur Lebensgestaltung
- Aktivierende Pflege zur Erhaltung der Selbstständigkeit
- Biografiearbeit zur Sicherung von Ritualen und Gewohnheiten
- Seelsorgerische Begleitung, Gottesdienste im Haus
- Aktive und erlebnisreiche Tagesgestaltung
- Freie Arztwahl, auf Wunsch medizinische Versorgung durch die Zusammenarbeit mit Fachärzten, Apotheken und therapeutische Betreuung durch Fachpraxen z.B. Physiotherapie, Ergotherapie und anderen Dienstleistungen, z.B. Podologie und Friseur.
Wir bieten unseren Bewohnern mehr als Pflege und Versorgung.
Sie sollen bei uns ein neues Zuhause finden.
Unser Angebot
Das Leben im Haus St. Martin soll den Bedürfnissen unserer Bewohner nach Überschaubarkeit, Vertrautheit, Kommunikation, Aktivität, menschlicher Nähe und Wärme entsprechen. Ältere Menschen verfügen grundsätzlich über ein großes Potential an Erfahrungen und Kompetenzen. Diese gilt es, zu erkennen bzw. zu fördern und in die Gestaltung des Lebensalltags unserer Bewohner einzubinden. Die persönlichen Lebensgewohnheiten unserer Bewohner zu entdecken und zu bewahren, liegt uns am Herzen. Die Mitarbeiter begegnen den Bewohnern im Alltag mit Verständnis und persönlicher Fürsorge.
Sozialer Dienst
Unser erfahrener Sozialer Dienst bietet den Bewohnern umfangreiche Freizeit- und verschiedene Beschäftigungsmöglichkeiten an und fördert damit die Alltagskompetenz.
Wir bieten Ihnen:
- Musikangebote, wie Singen, Musizieren, Tanzen
- Gymnastik und Bewegungsangebote
- Kreativangebote wie Malen und GestaltenMalergruppe freut sich über jeden neuen Künstler
- Entspannung und Ruhe im Snoezelenraum
- Spielrunden
- Gedächtnistraining
- Gesprächs- und Informationsrunden z.B. nach dem Frühstück
- gemeinsames Backen und Zubereiten von Zwischenmahlzeiten
- "Kaffeeklatsch" in den Wohnbereichen
- Gottesdienste im Haus
- Gestalten einer eigenen Hauszeitung
- Beschäftigung im Garten
- Literaturkreis
Gastfreundschaft erleben...
Das Haus Sankt Martin versteht sich als ein offenes und gastfreundliches Haus. Kulturelle Vielfalt und Gemeinsamkeiten erleben die Bewohner mit der Bevölkerung aus Hennen durch die Zusammenarbeit mit ehrenamtlichen Mitarbeitern, ortsansässigen Vereinen, Initiativen, Kindergärten und Schulen. Eine unmittelbare und gute seniorengerechte Anbindung an das Ortzentrum ermöglicht es den Bewohnern, am Leben des Ortes teilzunehmen. Getreu dem Motto "man trifft sich", verschafft die zentrale Lage des Hauses auch den Bürgern der Gemeinde die Möglichlkeit, den Bewohnern im Alltag einen Besuch abzustatten.
Angebote für demenzerkrankte Bewohner
Das Haus St. Martin macht für Menschen mit Demenz, die sehr unterschiedliche Ansprüche an Hilfe und Unterstützungen haben, professionelle Angebote. Um ihnen allen gerecht zu werden, bieten wir eine Vielzahl individueller Einzelförderungen an, die optimal auf die jeweiligen Bedürfnisse und Biographien unserer Bewohnerinnen und Bewohner abgestimmt sind.
Unsere Aufgabe ist es, die Kompetenzen der älteren Menschen mit Demenz wieder zu beleben und ihnen somit die Gelegenheit zu geben, sich an der Gestaltung des täglichen Lebens, abhängig von ihren Interessen und Bedürfnissen, zu beteiligen.
Ziel ist es, sie täglich zu vielfältigen Aktivitäten durch lebensgeschichtliche und vergangenheitsbezogene Aspekte anzuregen. Für die Lebensqualität der Menschen mit Demenz ist die Summe der positiven Momente von großer Bedeutung.
Kneipp-Therapie
Das ganzheitliche Denken Sebastian Kneipps (1821-1897) gilt noch heute als wegweisend für naturheilkundliche Heilmethoden und eine zeitgemäße Präventivmedizin.
Das Kneipp-Becken wird von einigen Bewohnern gerne benutzt
Kneipp stellte die Elemente Wasser, Pflanzen, Bewegung, Ernährung und Lebensordnung in einen engen Zusammenhang.
Der Name Kneipp steht damit nicht nur für wissenschaftlich fundierte naturheilkundliche Produkte und Anwendungen. Er steht für einen ganzheitlichen Lebensstil.
Gemäß dem Kneippschen Fundament der fünf Elemente, Wasser, Ernährung, Pflanzen und Kräuter, Bewegung und Lebensordnung bieten wir unseren Gästen und Bewohnern z.B. eine Tretbeckenanlage und Wasserbäder an.
Haustiere: drei Kaninchen
Wir kümmern uns gemeinsam mit den Bewohnern um unsere beiden Kaninchen im Garten. Unsere Bewohner sind mit Haustieren aktiver. Insbesondere Menschen, die an Demenzkrankheiten leiden, werden durch den Kontakt mit Tieren wacher und entspannter. Auch pflegen sie dann wieder mehr Kontakte zu anderen Bewohnern.
Verpflegung
In unserer Küche versorgt ein erfahrenes, professionelles Mitarbeiterteam unsere Bewohner mit abwechslungsreichem, gesundem Essen, wie z. B. Vollkost, vegetarische Kost oder im Bedarfsfall Diätkost. Zu den Hauptmahlzeiten gehören Frühstück, Mittagessen, Nachmittagskaffee sowie Abendessen. Zwischenmahlzeiten werden je nach Wunsch und Bedarf des Bewohners gereicht. Bei Getränken können sie zwischen Kaffee, Tee, Mineralwasser und Säften wählen. Darüber hinaus steht unseren Bewohnern in den einzelnen Wohnbereichen jeweils eine eigene Küche zur Verfügung, wo sie selbst backen und kleine Tagesgerichte herstellen können. Dies fördert zugleich wiederum die Kreativität und die Selbstständigkeit. Jeder Wohnbereich verfügt über einen hellen, freundlich eingerichteten, großen Aufenthaltsraum. Die Mahlzeiten können hier gemeinsam eingenommen werden.
Haustechnik, Verwaltung und Reinigung
Die Dienstleistungsbereiche Haustechnik, Verwaltung und Reinigung werden durch eigene, fachlich qualifizierte Mitarbeiter durchgeführt. Sie sind eingebunden in die gesamte Teamarbeit des Hauses. Sie unterstützen unsere Bewohner in ihren individuellen Wünschen. Weiterhin stellt die Einrichtung dem Bewohner Bettwäsche, Handtücher und Waschhandschuhe zur Verfügung. Die Reinigung der persönlichen Wäsche des Bewohners und die Zimmerreinigung sind im Heimentgelt enthalten.
Sonderdienstleistungen
Als externe Dienstleistungen bietet das Haus St. Martin Frisör, Fußpflege, Krankengymnastik, Änderungsschneiderei etc. an. Bei der Terminabsprache für den Frisör und die Fußpflege unterstützen wir gerne die Bewohner. Termine für die Krankengymnastik werden nach ärztlicher Verordnung vereinbart.








